Дом И.Ф. Калашникова, перв. четв. XIX в.
Кострома, ул. Островского, д. 10, лит. А

Небольшой двухэтажный на полуподвале особняк с характерным для классицизма ордерным декором имеет длительную историю строительства. В 1810-е гг. его основной объем — одноэтажный с полуподвалом – был возведен купцом И.Ф. Калашниковым, но мезонин оставался недостроенным еще при следующем хозяине — купце 3-й гильдии А.М. Клыкове, владевшем домом с 1841 г. В 1858 г. дом был куплен титулярной советницей Г.Ф. Богоявленской. При ней после городского пожара 1887 г. здание было перестроено — мезонин расширен до полного этажа, сделаны пристройки к дворовому и правому боковому фасадам. Последним владельцем дома был педагог В.В. Росницкий.
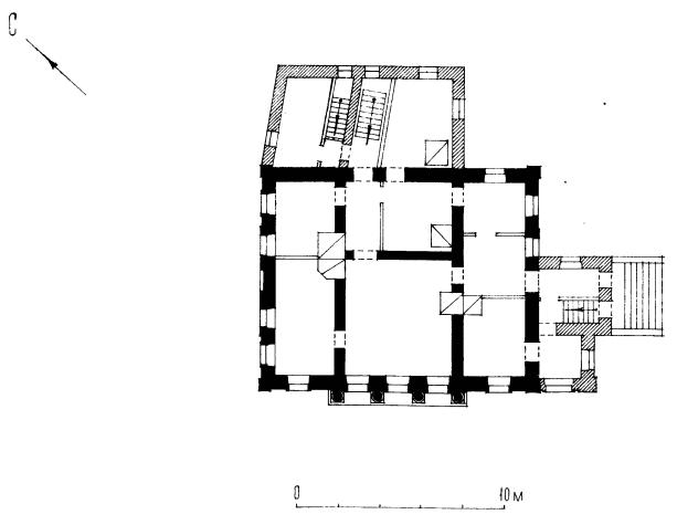
Прямоугольный в плане объем с вальмовой кровлей усложнен поздними пристройками. Главный фасад его основной части в 5 оконных осей фланкирован рустованными поэтажными лопатками, этажи разделены профилированными карнизами. Центр отмечен четырехколонным тосканским портиком бельэтажа, поднятым на массивном рустованном выступе полуподвального этажа. Последний прорезан тремя глубокими арками, в которых помещены прямоугольные нижние окна. Более высокие окна основного парадного этажа заключены в строгие наличники с горизонтальными сандриками. Планировка всех этажей образована двумя поперечными стенами. В центре расположены квадратные залы окнами на улицу, а в торцах — небольшие жилые помещения. В интерьерах сохранились тянутые потолочные карнизы и розетки, угловые печи белого кафеля и филенчатые двери с бронзовым “прибором” кон. XIX в.
Лит.: В.К. и Г.К. Лукомские. Кострома. СПб., 1913. С. 316; В.Н. Иванов. Кострома. М., 1970. С. 132; 2-е изд., М., 1978. С. 164; Памятники архитектуры Костромской области. Вып. 1. Ч. 2. Кострома, 1997. С. 107.
ГАКО. Ф. 207. Оп. 1. Д. 2182. Л. 1-7; Д. 2299. Л. 3 об.-4 (не сохр.); Д. 3385. Л. 1-4 (не сохр.); Ф. 497. Оп. 2. Д. 450. Л. 27 об.; Д. 1280. Л. 150-150 об. (не сохр.); Д. 2514. Л. 224 об.; Ф. Р. 513 (Е.В. Кудряшов). Оп. 1. Д. 129; Ф. Р. 838. Оп. 3. Д. 59. Л. 21 (не сохр.). Архив Свода памятников ДКН. Е.В. Кудряшов. Архитектурный ансамбль ул. Островского. Рукопись. С. 21-24.
Вып. I. Ч. 2. Г. Кострома 1997 (PDF)